|
Место:
Латвия, Рижский район, Рига, Центр
Цена:
300 059 €
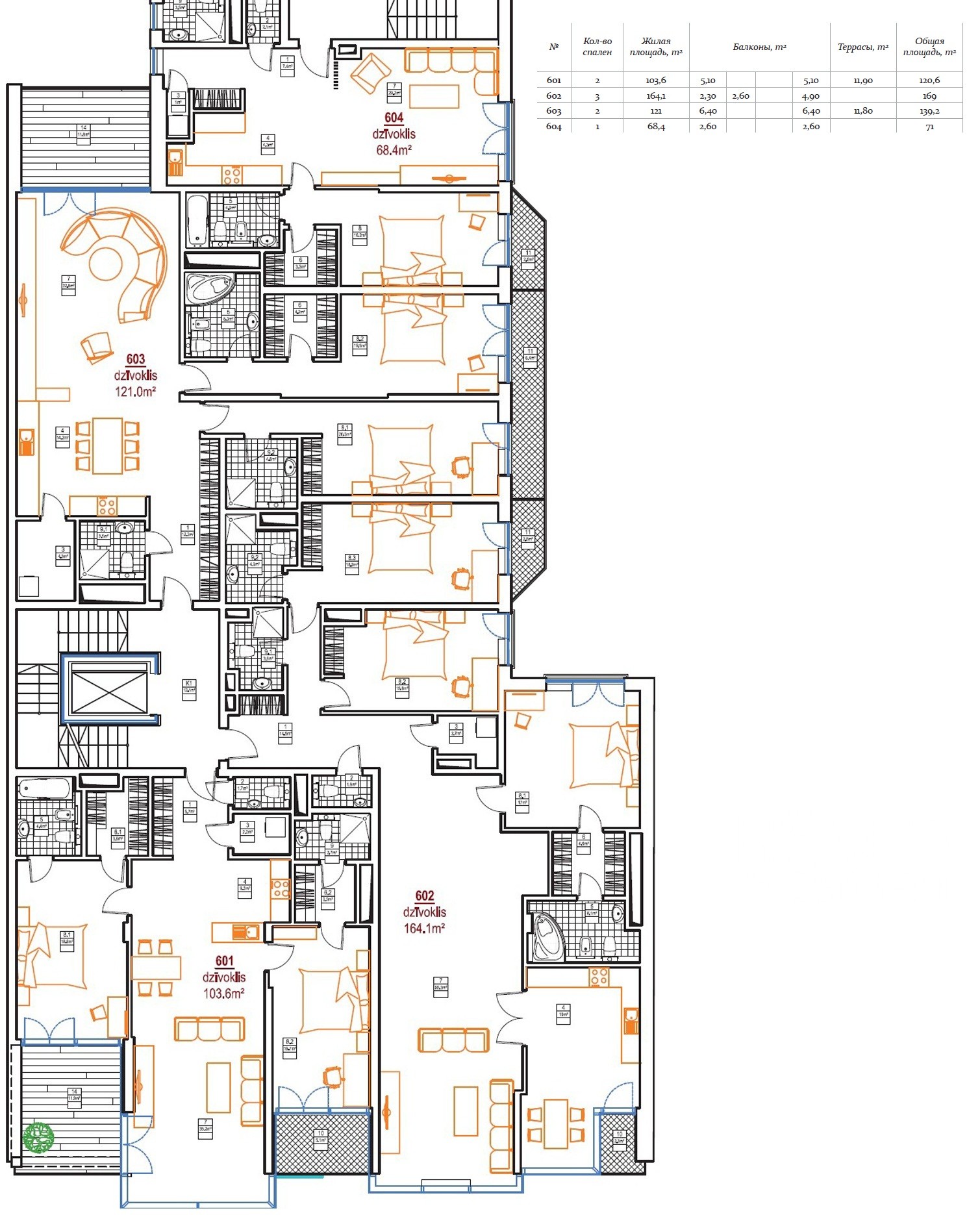
2 комн. квартира, с балконом, 6\8 эт., 71 кв.м.
Tal Residence - УНИКАЛЬНЫЕ АПАРТАМЕНТЫ В ТИХОМ ЦЕНТРЕ РИГИ. Этот проект является данью уважения великому гению, шахматисту, рижанину - Михаилу Талю, традициям и истории города Риги. Современная архитектура здания с ее открытостью и прозрачностью позволяет жителям TAL RESIDENCE из панорамных окон и с просторных террас наслаждаться изумительными видами на исторические здания квартала.
В дизайнерских холлах предусмотрено место для консьержа и место для приема гостей. Дом оснащен двумя дизайнерскими бесшумными скоростными панорамными лифтами.
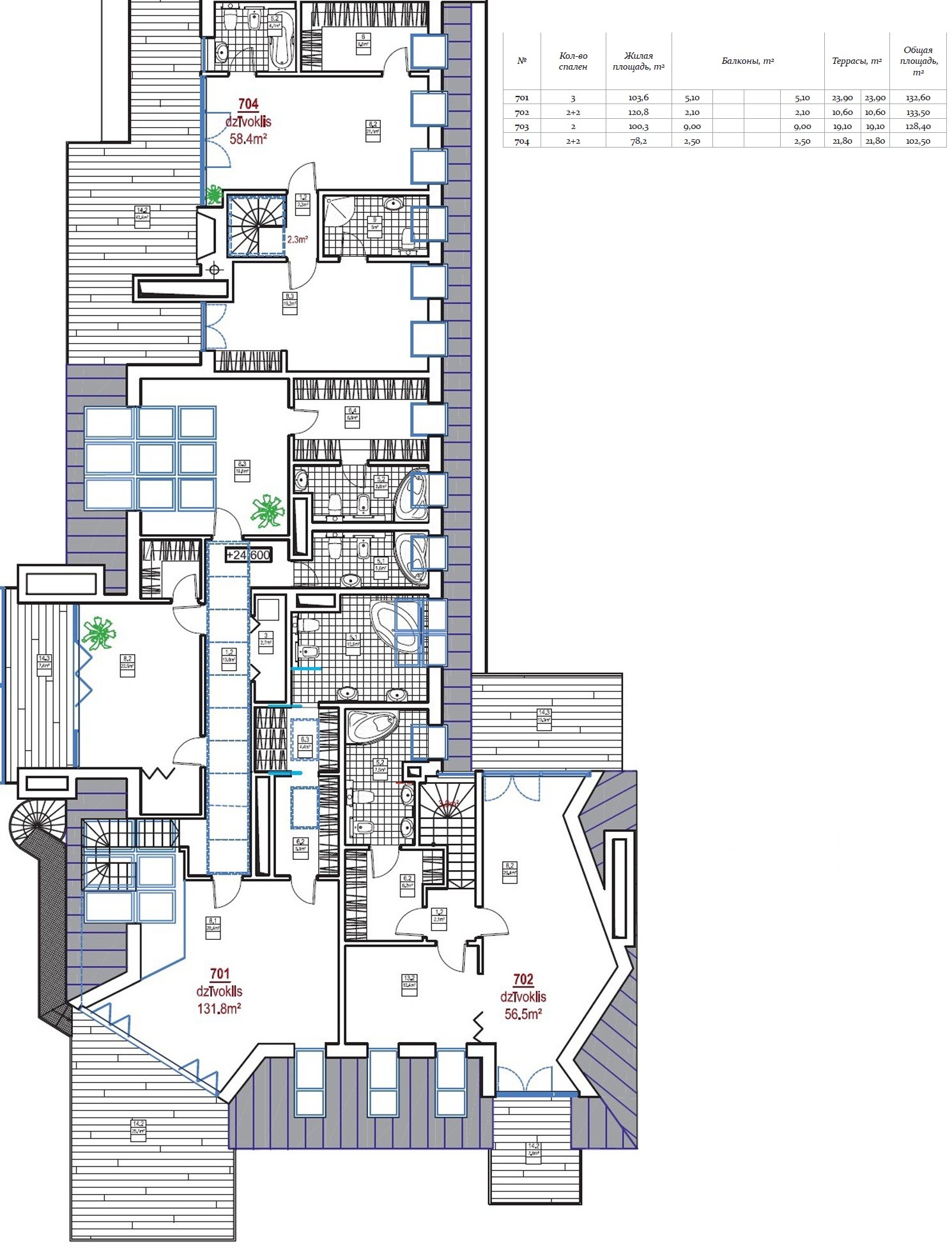
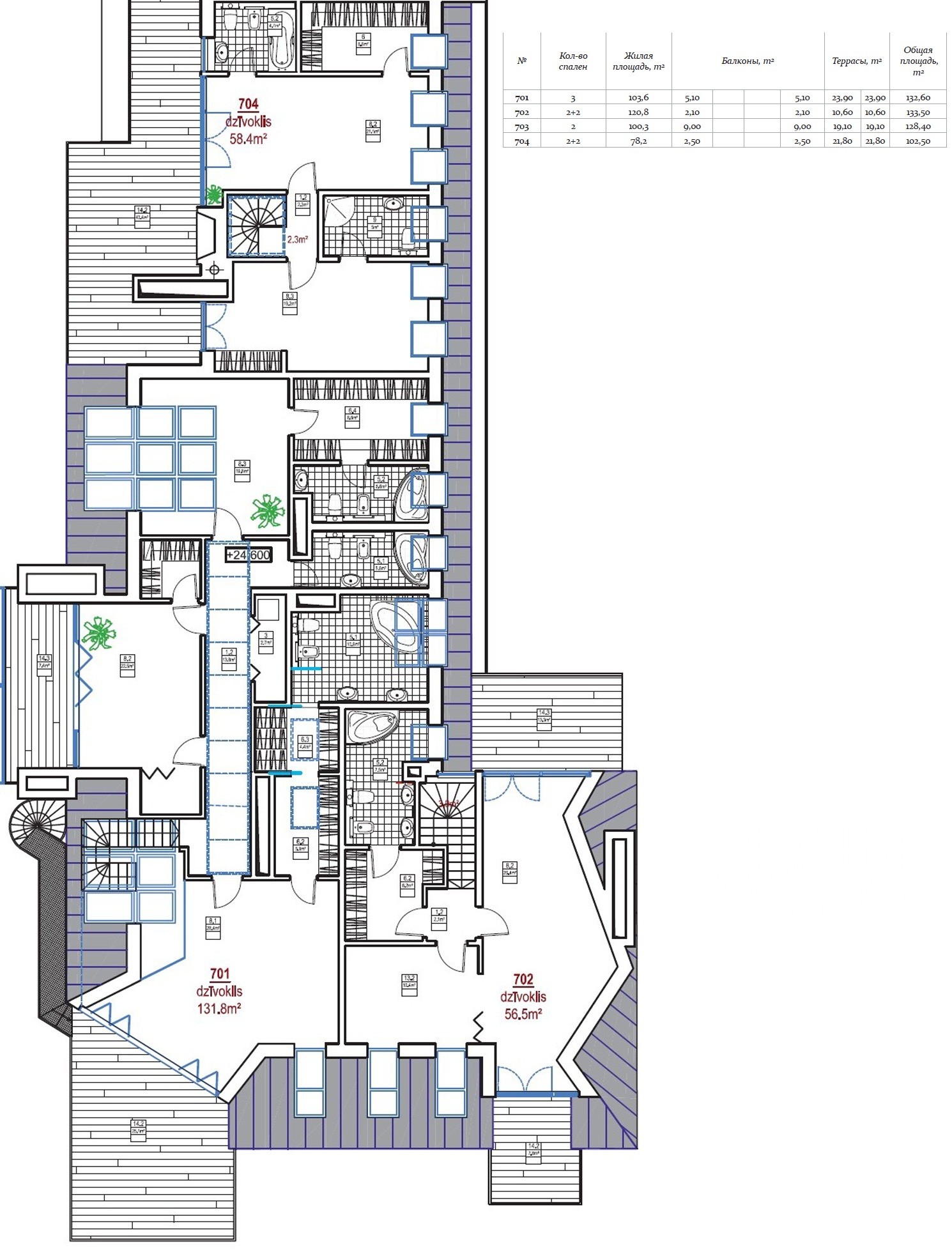
Все 34 апартамента 8-ми этажного люксового жилого дома имеют продуманную планировку, просторные балконы, крышные террасы или личную территорию. Жителям TAL RESIDENCE предлагаются на выбор квартиры с «белой» отделкой или два варианта внутренней отделки, разработанных профессиональными дизайнерами, с встроенной кухней, сантехникой, осветительными приборами и мебелью, а так же можно выбрать вариант «под ключ».
Уникальными преимуществами ваших апартаментов в TAL RESIDENCE станут – исключительность месторасположения и архитектурных решений, подземный паркинг и консьерж-сервис для искушенного клиента.
Жилая площадь квартир – от 50 кв.м до 270 кв.м, есть возможность объединения. Высота потолков – 3,50 м.
В доме предусмотрено видеонаблюдение, покрывающее всю территорию и помещения общего пользования с постоянной записью.
Система домофонов, с передачей комбинированного сигнала (аудио и видео), сопряжённая с консьерж-сервисом.
Трёхуровневый контроль доступа.
Охранная сигнализация с пультом в охранной фирме.
Круглосуточная мультифункциональная консьерж служба.
Охрана периметра Дома.
| Описание квартиры: |
| ID объекта: |
A123 |
| Этаж: |
6\8 |
| Площадь квартиры: |
71 m2 |
| Адрес: |
ул. Элизабетес |
| Количество комнат: |
2 |
| Количество санузлов: |
2 |
| Проект: |
Новый |
| Состояние: |
белая отделка |
| Риелтор: |
Rafails: +371 22833246,
rafails@realinvestment.lv |
|
| Местоположение: |
|
В красивейшей части тихого центра Риги, в окружении жемчужин югендстиля, занесенных в культурный фонд UNESCO, возводится здание TAL RESIDENCE – будущий памятник архитектуры XXI века. |
|
|