Дом у моря в Рое
|
|
Место:
Латвия, Талсинский район, Роя
Цена:
56 000 €
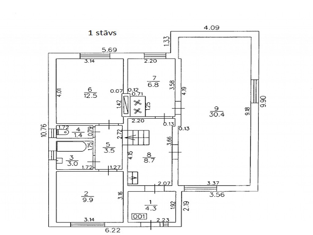
2 –х эт. дом , 400м до моря.
Дом кирпичный, 162 кв.м., включая гараж и сарай. В доме есть подвал с тремя помещениями.
На 1этаже:
- гостиная;
- 2 спальни;
- кухня;
-туалет;
- ванная комната.
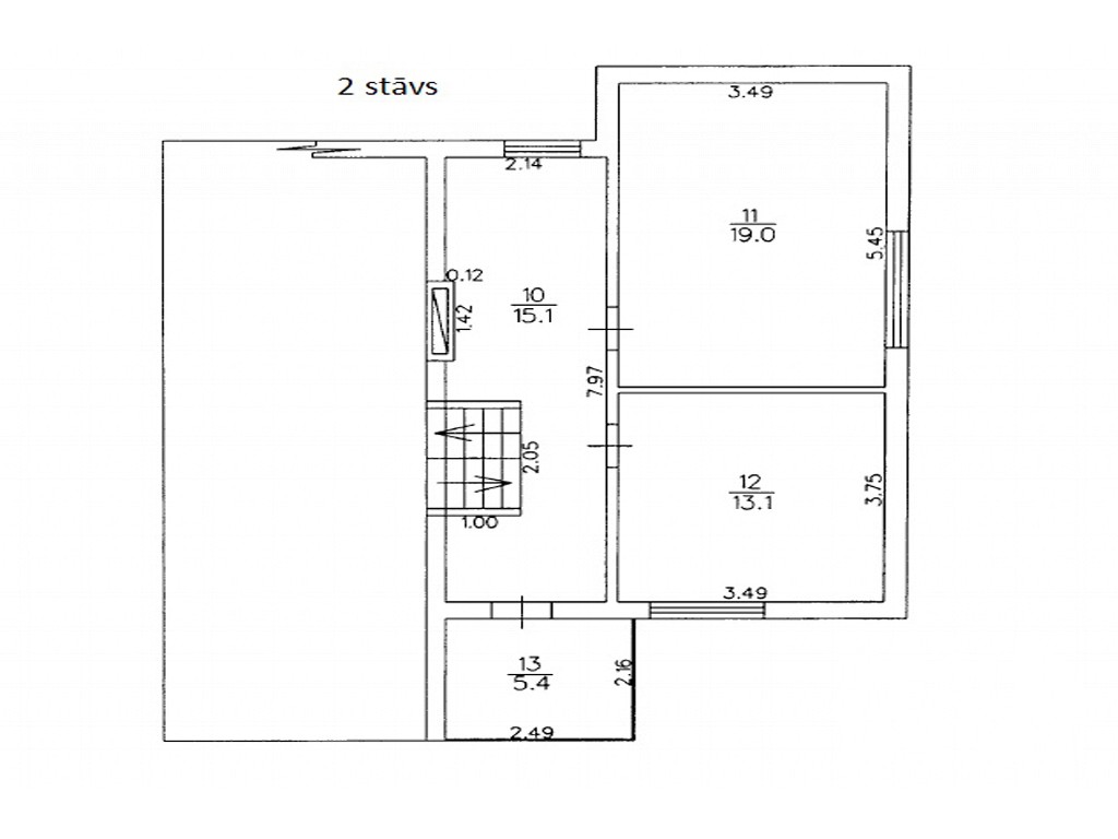
На 2 этаже:
- 2 спальни.
Дом построен в 1998 году. Внутренней отделки нет. Подготовка к ремонту.
| Описание дома: |
| ID объекта: |
H13 |
| Количество этажей: |
2 |
| Площадь дома: |
162 m2 |
| Адрес: |
Ул. Акас 64 |
| Количество комнат: |
5 |
| Количество спален: |
4 |
| Состояние: |
подготовленo к ремонту |
| Материал стен: |
кирпич |
| Коммуникации: |
все местные |
| Отопление: |
печное |
|
| Описание участка: |
| Площадь участка: |
1300 m2 |
| Дополнительно: |
Участок прямоугольной формы – 1300 кв.м..На участке два строения – жилой дом и гараж с сараем. |
| |
|
| Местоположение: |
Роя – рыбацкий посёлок находится в 230 км. от Риги. Хорошая асфальтная дорога. Регулярные автобусные рейсы.
Старый порт Роя, который использовали еще древние викинги, о чем свидетельствуют захоронения на берегах реки Роя – так называемые чертовы ладьи. Во времена Курляндского герцогства в Рое строили корабли, и сейчас в порту Рои идет активная жизнь – рыболовство, перевозка грузов. Здесь можно договориться об увлекательной прогулке на кораблике от Рои до острова Роню в Рижском заливе. В Рое находится Музей морского рыболовства, также здесь доступна частная коллекция моделей парусников
|
|
|
|
|
|
|
|