Дом с выходом на пляж.
|
|
Место:
Латвия, Рижский район, Юрмала, Пумпури
Цена:
1 200 000 €
2 эт. Дом + гостевой дом в 50м до моря.
Площадь дома – 340 кв.м. Площадь гостевого домика – 89 кв.м.
1999г. постройки.
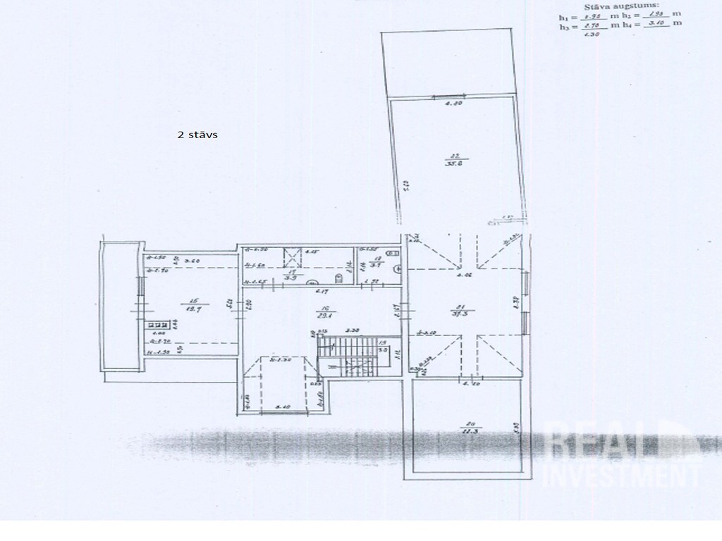
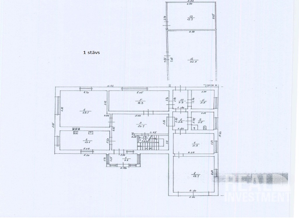
На 1 этаже находится;
- гостиная (23кв.м.),
- кухня (13 кв.м.),
- кабинет (16 кв.м.),
- гараж.
- помещения, где можно установить бассейн и сауну.
- санузел.
На 2этаже :
- 2 спальни (37+22),
- 2 санузла,
- холл ( 29 кв.м.)
- помещения, которые можно использовать под 2 спальни (36+22 кв.м.)
Гостевой дом:
- гостиная с кухней (21 кв.м.).
- 2 комнаты (11+10 кв.м.)
- веранда (14 кв.м.),
- санузел.
Полная внутренняя отделка, камин, сауна, гараж на 1 машину, вся мебель, встроенная кухня.
| Описание дома: |
| ID объекта: |
H15 |
| Количество этажей: |
2 |
| Площадь дома: |
340 m2 |
| Адрес: |
Ул.Иецавас 3 |
| Количество комнат: |
6 |
| Количество спален: |
5 |
| Количество санузлов: |
4 |
| Состояние: |
отличное |
| Материал стен: |
дерево |
| Коммуникации: |
все городские |
| Отопление: |
газовое |
| Риелтор: |
Rafails: +371 22833246,
rafails@realinvestment.lv |
|
| Описание участка: |
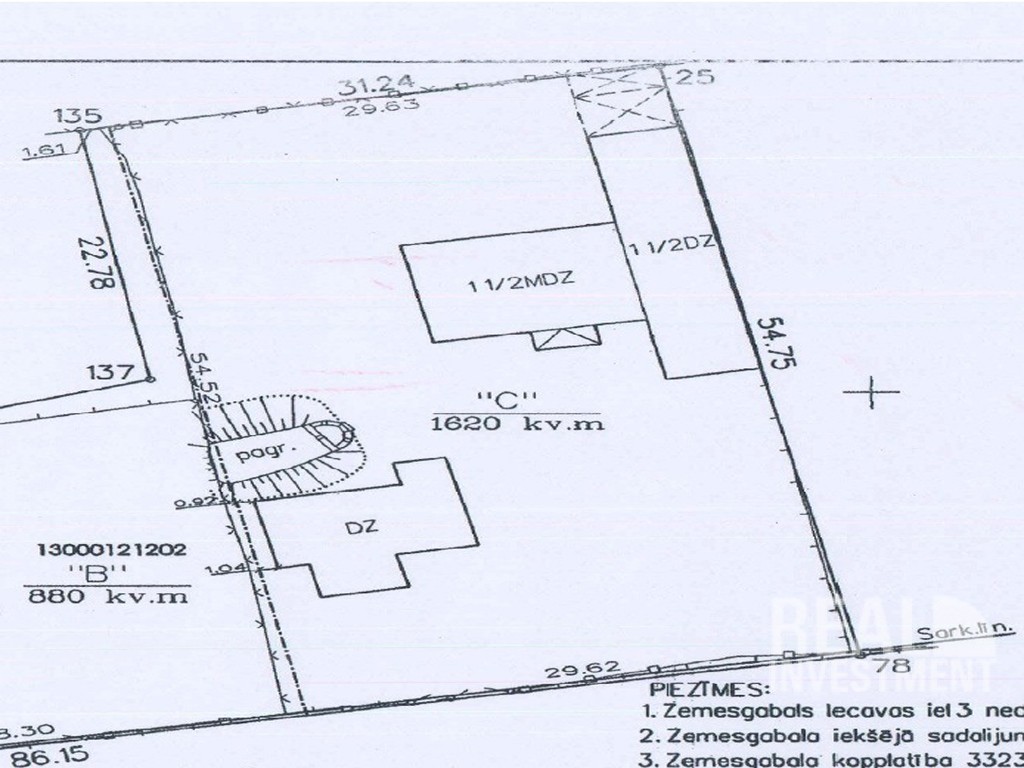
| Площадь участка: |
1650 m2 |
| Дополнительно: |
Участок -1650 кв.м. граничит с дюнной. Благоустроенная территория, брусчаткой выложенные подъездные пути. Палисадник на фоне классического дюнного соснового леса.
Отдельный выход прямо на пляж.
|
| |
|
| Местоположение: |
Тихое место, в стороне от массового наплыва отдыхающих, но 5 минут можете доехать до центра Юрмалы, до ул. Йомас или до концертного зала «Дзинтари».
До Риги можно доехать за 25 минут.
|
|
|
|
|
|
|
|