|
Место:
Латвия, Рижский район, Юрмала, Вайвари
Цена:
245 000 €
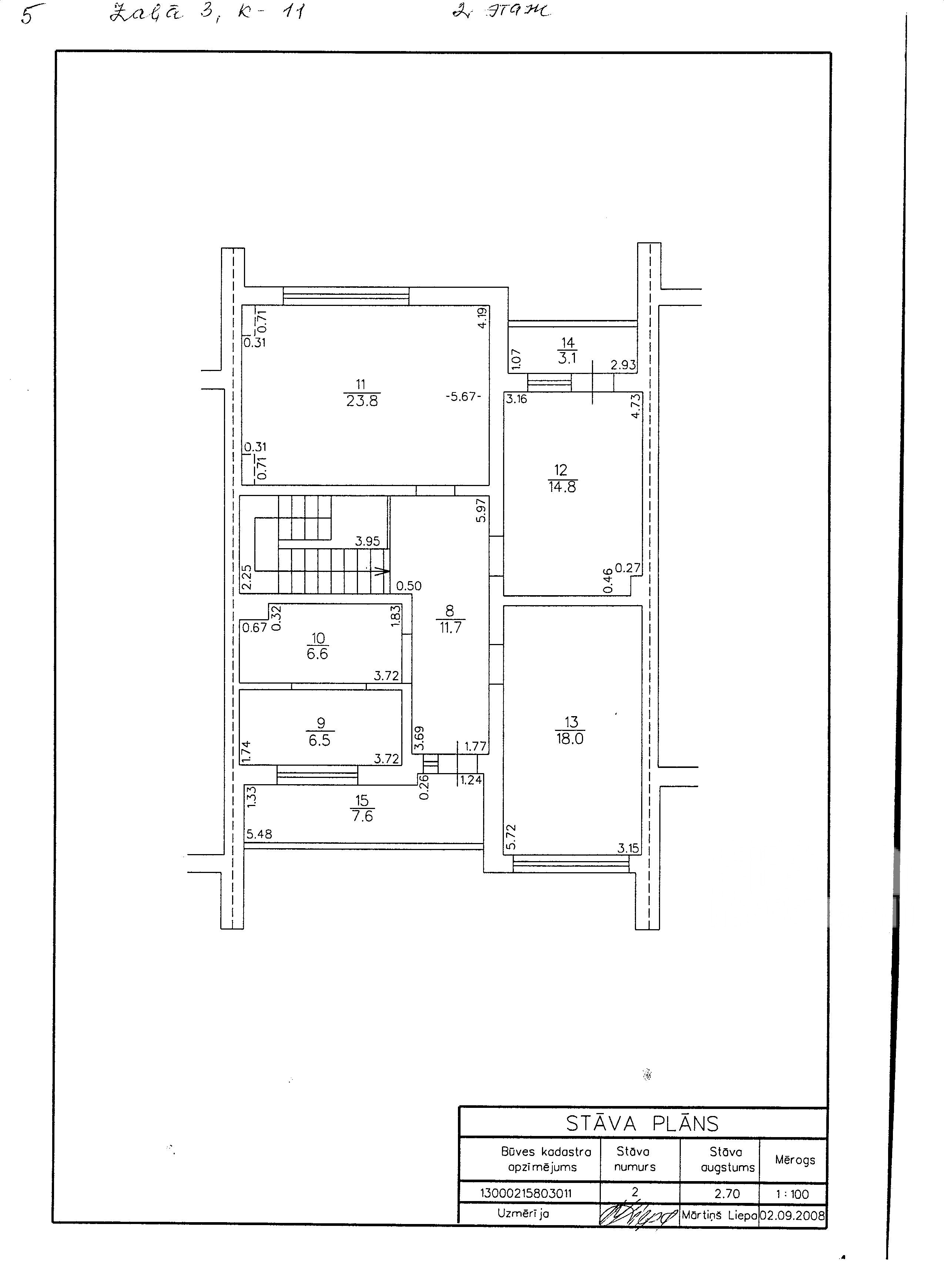
3-х этажные – близнецы (таунхасы), в посёлке Рондо.
Дома состоят:
На 1 этаже:
- прихожая,
- санузел с душевой кабиной,
-катальная (она же прачечная), кухня,
-гостиная с красивым камином (36 кв.м.),
- отдельная кухня( 15 кв.м.),
- гараж (18 кв.м.)
На 2этаже:
- 3 спальни ( 24+18+15 кв.м.)
- ванная комната (13 кв.м.)
- 2 балкона.
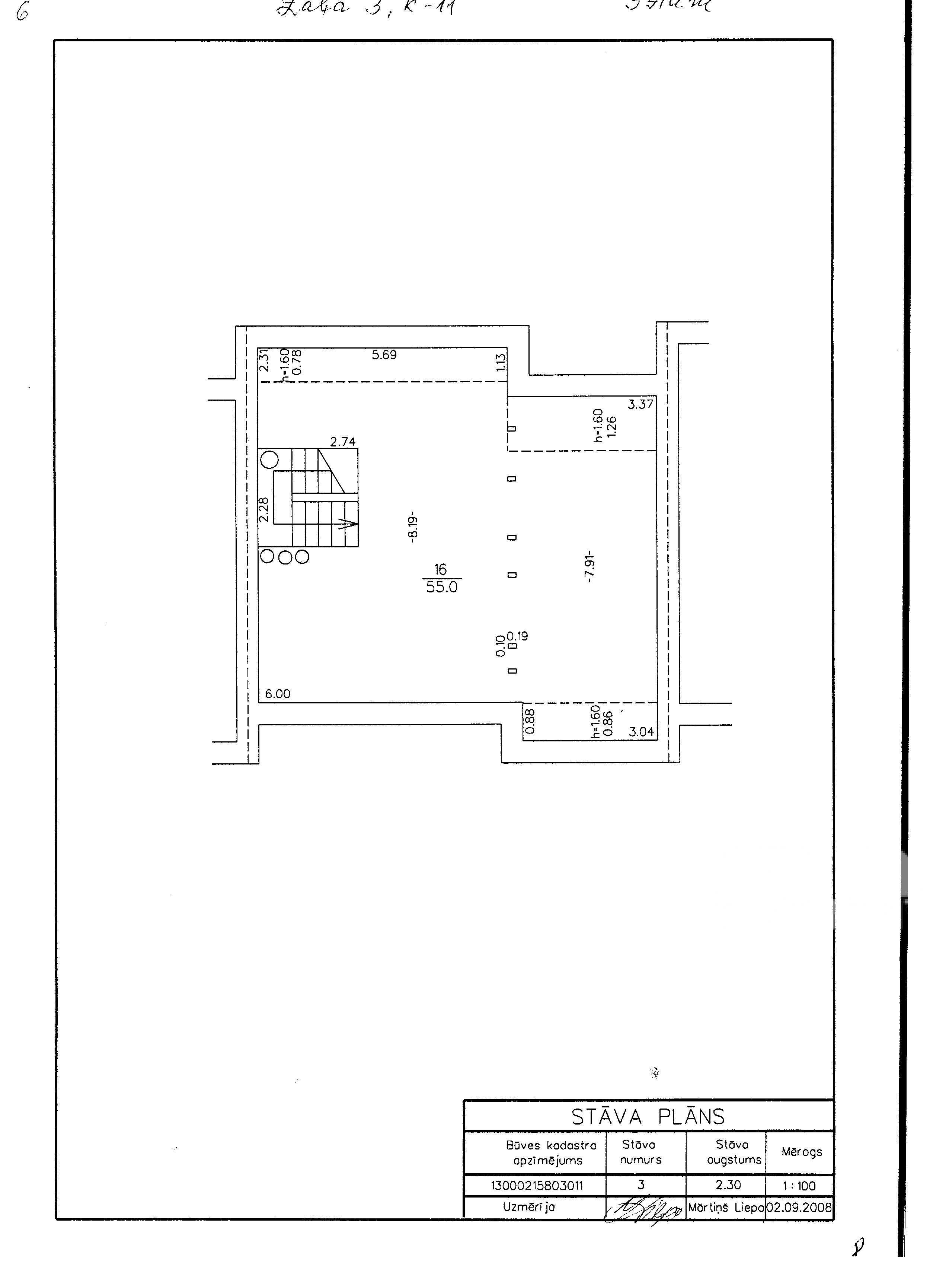
На 3 этаже (мансардном) можно сделать дополнительную спальню....
Сантехника от европейского производителя. В гостиной предусмотрен выход на террасу, где благоустроена зелёная зона и есть возможность приятно проводить время летом, установив садовую мебель и мангал. Также, в гостиной устанавливаются камины, что создаёт особый уют зимними вечерами, когда семья собирается у телевизора.
Фундаменты:
- Железобетонная монолитная подушка 60x40
- Два уровня железобетонных блоков 40x60
- Железобетонный монолитный пояс 20x40
- Горизонтальная и вертикальная гидроизоляция фундаментов
- Теплоизоляция периметра фундамента.
I этаж:
• Газобетонные блоки типа AEROC
• Монолитный железобетонный пояс 20x40
• Железобетонные перекрытия между I и II этажами
II этаж:
• Газобетонные блоки типа AEROC
• Между II и мансардным этажом деревянные перекрытия.
Толщина стен вместе с теплоизоляцией 600 мм.
Теплоизоляция крыши: 300 мм каменной ваты.
Кровельное покрытие: битумная черепица.
Окна: 5-и камерный профиль REHAU
Фасад: декаративная штукатурка, отделочная доска, пропитанная и покрашенная краской Becker
Отопление: ионный котёл «Beril», возможна установка тепловых насосов, а также рассматривается вопрос подключения к городскому газопроводу.
Электричество: во всех помещениях проведена электроинсталляция в соответствии с проектом, обслуживает AS Latvenergo.
Водоснабжение: подключение к городским коммуникациям. Есть собственная скважена, которая позволяет экономить потребление воды на хозяйственные нужды, связанные с обслуживанием территории.
Коммуникации: Lattelecom (телефон, интернет, TV)
В посёлке 16 домов, 6 из которых на данный момент предлагаются на продажу.
Полностью меблированные дома сдаются также и в аренду. Наша цена:
Краткосрочная аренда – 2500 EUR/мес
Летний период – 3000 EUR/мес
Долгосрочная – 1500 EUR/мес
Плюс комунальные платежи (~200 EUR/мес)
| Описание дома: |
| ID объекта: |
H30 |
| Количество этажей: |
3 |
| Площадь дома: |
240 m2 |
| Адрес: |
Ул. Заля |
| Количество комнат: |
5 |
| Количество спален: |
4 |
| Количество санузлов: |
2 |
| Состояние: |
серая отделка |
| Материал стен: |
кирпич |
| Коммуникации: |
все городские |
| Отопление: |
газовое |
| Риелтор: |
Rafails: +371 22833246,
rafails@realinvestment.lv |
|
| Описание участка: |
| Дополнительно: |
Посёлок Рондо закрытого типа. Вокруг берёзы, сосны, территория благоустроена, сделанный из природных материалов фонтан. Территория огорожена забором и охраняется. |
| |
|
| Местоположение: |
До моря 15 минут. Недалеко находится рынок, магазины, аквапарк .и вся городская инфраструктура. Посёлок находится в километре от Слоки, где есть и торговый центр, магазины, школа, детский сад, ж/д станция и только один километр до моря. В двухсот метрах от поселка курсирует рейсовый автобус, на котором легко добраться до центра Юрмалы, до Слоки, и до Каугури.
До центра Риги 40 км.
|
|
|